Description
2D CAD software for classic drawing and design
SPIRIT lite is a cost-effective alternative to other CAD “Lite” or “LT” solutions. SPIRIT lite offers all the necessary tools to create your technical drawings accurately and professionally.


Simple and intuitive
Compared to other CAD programs, SPIRIT stands out due to its intuitive and easy-to-use interface. It’s an ideal option for those seeking a straightforward and efficient 2D CAD tool.
The user-friendly interface of SPIRIT lite allows you to get started quickly and ensures productive work right from the start.
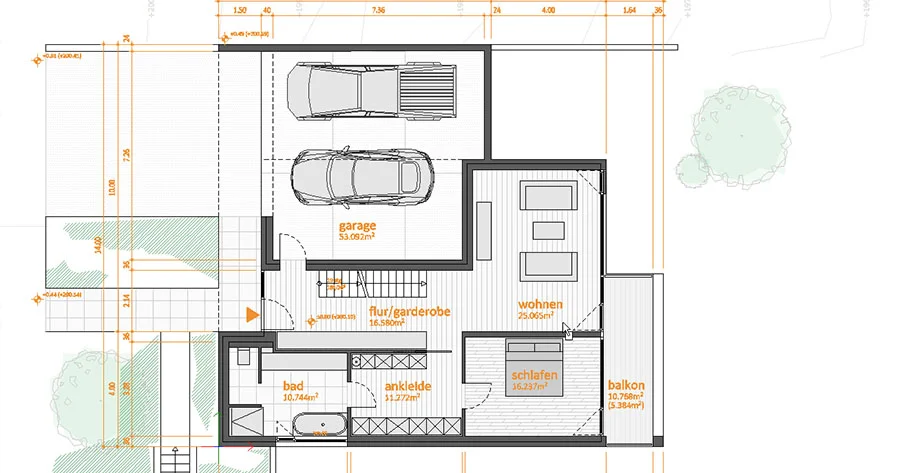
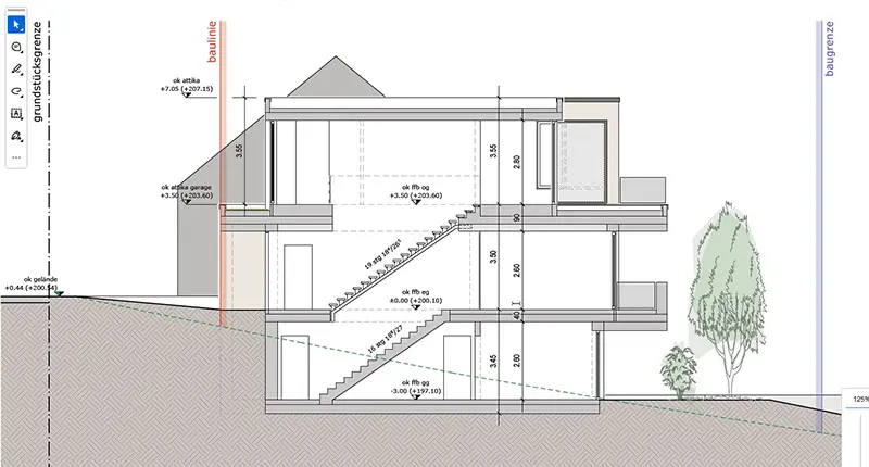
Precise drawings


Broad Compatibility
SPIRIT lite supports popular file formats such as DWG and DXF, so you can collaborate seamlessly with external partners, colleagues, and customers. This seamless data exchange makes SPIRIT lite the ideal choice for those who prioritise compatibility.
Reliable & Cost-Efficient


Why use SPIRIT lite?
Perfect for architects, engineers and technical draftsmen
Experience the benefits of a powerful 2D CAD program and take your technical drawings to the next level.